Проект каркасного дома Дуплекс шале 246

Рекомендуемая планировка

1 этаж
Планировка Дуплекс шале 246 - 1 этаж
1 этаж с мебелью
Планировка Дуплекс шале 246 - 1 этаж
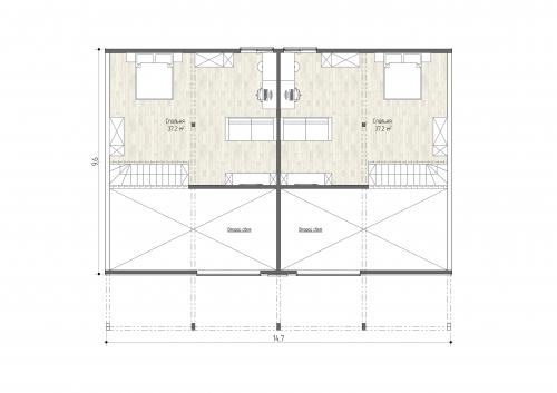
2 этаж
Планировка Дуплекс шале 246 - 2 этаж
2 этаж с мебелью
Планировка Дуплекс шале 246 - 2 этаж
Индивидуальная планировка
В подарок!
Проект

Дуплекс шале 246

6 444 000 ₽
Ипотека 44 226 ₽/мес
Гарантия 15 лет
Комплектация
«Стандарт»
Площадь
246 м²
Этажей
1.5
Котельная
Есть
Санузлов
2
Размеры
12×15,5 м
Комнат
5
Терраса
Есть
Балкон
Пока нет
Хочу внести
изменения

Внесение изменений в проект - БЕСПЛАТНО

Комплектации

Мы не навязываем дополнительные услуги, комплектации сформированы с учетом всех пожеланий заказчика и купить их можно по той цене, которую вы видите на сайте
В комплектации можно вносить любые изменения
«Теплый контур»

Комплектация теплого контура дома для круглогодичного проживания

Высота потолков: первый этаж — 2,7 м; второй этаж — 2,5 м

Свайно-винтовой фундамент

Утепление – 150 мм (Базальтовые плиты)

Окна – пластиковые Rehau

Отделка стен – снаружи ОСП

Кровля – оцинкованный профнастил.

Высота потолков: первый этаж — 2,7 м; второй этаж — 2,5 м

Фундамент: свайный 2,5 м с ростверком из наборной балки 200 мм (ниже глубины промерзания). Монтаж механическим способом

Стены: каркас — 150 мм; утепление — 150 мм (Базальтовые плиты), снаружи — ОСП

Кровля: оцинкованный профнастил

Первый этаж:

Полы: утепление — 150 мм (Базальтовые плиты), доска пола или ориентированно-стружечная плита (ОСП).

Стены: утепление — 150 мм (Базальтовые плиты), снаружи — ОСП

Перегородки: каркас — 100 мм

Потолок: утепление 100 мм (Базальтовые плиты)

Второй этаж:

Полы: доска пола или ориентированно-стружечная плита (ОСП)

Стены: утепление — 150 мм (Базальтовые плиты), снаружи — ОСП

Перегородки: каркас — 100 мм

Потолок: утепление — 100 мм (Базальтовые плиты)

Окна: пластиковые, с двойным стеклопакетом (3 стекла)

Изоляция: изоляция всех конструкций с проклейкой швов

Электрика: распределительный щит 220 V с автоматикой на 5 групп, в каждом помещении три точки (розетка, выключатель и лампочка)

Водоснабжение и канализация: прокладка труб горячей и холодной воды сшитым полиэтиленом открытым способом и системы канализации скрытым способом в каждый санузел на три потребителя (раковина, унитаз, душевая), установка водонагревателя и фильтра грубой очистки

Отопление: организация выделенной линии под конвекторы отопления в каждом помещении

Можно заказать дополнительно к этой комплектации

Подарки и скидки

Проклейка швов пароизоляции

Акция! Окна в подарок до 27 декабря

Выбрать выгодную стоимость
Итого со скидкой
7 376 505
«Комфорт»

Комплектация дома для круглогодичного проживания с оптимальным соотношением цена-качество

Высота потолков: первый этаж — 2,7 м; второй этаж — 2,5 м

Свайно-винтовой фундамент

Утепление – 150 мм (Базальтовые плиты)

Окна – пластиковые Rehau

Отделка стен – снаружи и внутри вагонка

Кровля – оцинкованный профнастил.

Высота потолков: первый этаж — 2,7 м; второй этаж — 2,5 м

Фундамент: свайный 2,5 м с ростверком из наборной балки 200 мм (ниже глубины промерзания). Монтаж механическим способом

Стены: каркас — 150 мм; отделка внутри вагонкой 12,5 мм, снаружи — вагонка 12,5 мм; утепление — 150 мм (Базальтовые плиты)

Кровля: оцинкованный профнастил

Первый этаж:

Полы: утепление — 150 мм (Базальтовые плиты), доска пола или ориентированно-стружечная плита (ОСП).

Стены: утепление — 150 мм (Базальтовые плиты), отделка внутри вагонкой 12,5 мм, снаружи — вагонка 12,5 мм

Перегородки: каркас — 100 мм, отделка вагонкой 12,5 мм

Потолок: утепление 100 мм (Базальтовые плиты), отделка вагонкой 12,5 мм

Второй этаж:

Полы: доска пола или ориентированно-стружечная плита (ОСП)

Стены: утепление — 150 мм (Базальтовые плиты); отделка внутри вагонкой 12,5 мм, снаружи — вагонка 12,5 мм

Перегородки: каркас — 100 мм, отделка вагонкой 12,5 мм

Потолок: утепление — 150 мм (Базальтовые плиты), отделка вагонкой 12,5 мм

Окна: Пластиковые Rehau, с двойным стеклопакетом (3 стекла)

Изоляция: изоляция всех конструкций с проклейкой швов

Электрика: распределительный щит 220 V с автоматикой на 5 групп, в каждом помещении три точки (розетка, выключатель и лампочка)

Водоснабжение и канализация: прокладка труб горячей и холодной воды сшитым полиэтиленом открытым способом и системы канализации скрытым способом в каждый санузел на три потребителя (раковина, унитаз, душевая), установка водонагревателя и фильтра грубой очистки

Отопление: организация выделенной линии под конвекторы отопления в каждом помещении

Можно заказать дополнительно к этой комплектации

Подарки и скидки

Проклейка швов пароизоляции

Акция! Окна в подарок до 27 декабря

Выбрать выгодную стоимость
Итого со скидкой
8 648 624
«Премиум»

Комплектация теплого дома для круглогодичного проживания с повышенной энергоэфективностью

Высота потолков: первый этаж — 2,7 м; второй этаж — 2,5 м

Железобетонные забивные сваи

Утепление – 200 мм (Базальтовые плиты)

Окна – пластиковые Rehau

Отделка стен – снаружи сайдинг Docke, внутри - гипсокартон Knauf

Кровля – металлочерепица Grand Line

Высота потолков: первый этаж — 2,7 м; второй этаж — 2,5 м

Фундамент: железобетонные забивные сваи 3,0 м с ростверком из наборной балки 200 мм (ниже глубины промерзания)

Стены: каркас — 200 мм; отделка внутри - гипсокартон Knauf 12,5 мм, снаружи — сайдингом Docke; утепление — 200 мм

Кровля: металлочерепица Grand Line

Первый этаж:

Полы: утепление — 200 мм, доска пола или ориентированно-стружечная плита (ОСП). Обработка огнебиозащитой нижнего конструктива

Стены: утепление — 200 мм (Базальтовые плиты), отделка внутри гипсокартон Knauf 12,5 мм, снаружи — сайдингом Docke

Перегородки: каркас — 100 мм, отделка гипсокартоном Knauf 12,5 мм

Потолок: утепление 100 мм (Базальтовые плиты), отделка гипсокартоном Knauf 12,5 мм

Второй этаж:

Полы: доска пола или ориентированно-стружечная плита (ОСП)

Стены: утепление — 200 мм (Базальтовые плиты); отделка внутри гипсокартон Knauf 12,5 мм, снаружи — сайдингом Docke

Перегородки: каркас — 100 мм, отделка гипсокартоном Knauf 12,5 мм

Потолок: утепление — 200 мм (Базальтовые плиты), отделка гопсокартоном 12,5 мм

Окна: Пластиковые Rehau, с двойным стеклопакетом (3 стекла)

Изоляция: изоляция всех конструкций с проклейкой швов

Вентиляция: Санузла с выводом через крышу

Электрика: распределительный щит 220 V с автоматикой на 5 групп, в каждом помещении три точки (розетка, выключатель и лампочка)

Водоснабжение и канализация: прокладка труб горячей и холодной воды сшитым полиэтиленом открытым способом и системы канализации скрытым способом в каждый санузел на три потребителя (раковина, унитаз, душевая), установка водонагревателя и фильтра грубой очистки

Отопление: организация выделенной линии под конвекторы отопления в каждом помещении

Можно заказать дополнительно к этой комплектации

Подарки и скидки

Комплект москитных сеток на окна

Проклейка швов пароизоляции

Акция! Окна в подарок до 27 декабря

Выбрать выгодную стоимость
Итого со скидкой
9 711 105
«Теплый контур»

Комплектация теплого контура дома для круглогодичного проживания

Высота потолков: первый этаж — 2,7 м; второй этаж — 2,5 м

Свайно-винтовой фундамент

Утепление – 150 мм (Базальтовые плиты)

Окна – пластиковые Rehau

Отделка стен – снаружи ОСП

Кровля – оцинкованный профнастил.

Высота потолков: первый этаж — 2,7 м; второй этаж — 2,5 м

Фундамент: свайный 2,5 м с ростверком из наборной балки 200 мм (ниже глубины промерзания). Монтаж механическим способом

Стены: каркас — 150 мм; утепление — 150 мм (Базальтовые плиты), снаружи — ОСП

Кровля: оцинкованный профнастил

Первый этаж:

Полы: утепление — 150 мм (Базальтовые плиты), доска пола или ориентированно-стружечная плита (ОСП).

Стены: утепление — 150 мм (Базальтовые плиты), снаружи — ОСП

Перегородки: каркас — 100 мм

Потолок: утепление 100 мм (Базальтовые плиты)

Второй этаж:

Полы: доска пола или ориентированно-стружечная плита (ОСП)

Стены: утепление — 150 мм (Базальтовые плиты), снаружи — ОСП

Перегородки: каркас — 100 мм

Потолок: утепление — 100 мм (Базальтовые плиты)

Окна: пластиковые, с двойным стеклопакетом (3 стекла)

Изоляция: изоляция всех конструкций с проклейкой швов

Электрика: распределительный щит 220 V с автоматикой на 5 групп, в каждом помещении три точки (розетка, выключатель и лампочка)

Водоснабжение и канализация: прокладка труб горячей и холодной воды сшитым полиэтиленом открытым способом и системы канализации скрытым способом в каждый санузел на три потребителя (раковина, унитаз, душевая), установка водонагревателя и фильтра грубой очистки

Отопление: организация выделенной линии под конвекторы отопления в каждом помещении

Можно заказать дополнительно к этой комплектации

Подарки и скидки

Проклейка швов пароизоляции

Акция! Окна в подарок до 27 декабря

Выбрать выгодную стоимость
Итого со скидкой
7 376 505
7 377 000
«Комфорт»

Комплектация дома для круглогодичного проживания с оптимальным соотношением цена-качество

Высота потолков: первый этаж — 2,7 м; второй этаж — 2,5 м

Свайно-винтовой фундамент

Утепление – 150 мм (Базальтовые плиты)

Окна – пластиковые Rehau

Отделка стен – снаружи и внутри вагонка

Кровля – оцинкованный профнастил.

Высота потолков: первый этаж — 2,7 м; второй этаж — 2,5 м

Фундамент: свайный 2,5 м с ростверком из наборной балки 200 мм (ниже глубины промерзания). Монтаж механическим способом

Стены: каркас — 150 мм; отделка внутри вагонкой 12,5 мм, снаружи — вагонка 12,5 мм; утепление — 150 мм (Базальтовые плиты)

Кровля: оцинкованный профнастил

Первый этаж:

Полы: утепление — 150 мм (Базальтовые плиты), доска пола или ориентированно-стружечная плита (ОСП).

Стены: утепление — 150 мм (Базальтовые плиты), отделка внутри вагонкой 12,5 мм, снаружи — вагонка 12,5 мм

Перегородки: каркас — 100 мм, отделка вагонкой 12,5 мм

Потолок: утепление 100 мм (Базальтовые плиты), отделка вагонкой 12,5 мм

Второй этаж:

Полы: доска пола или ориентированно-стружечная плита (ОСП)

Стены: утепление — 150 мм (Базальтовые плиты); отделка внутри вагонкой 12,5 мм, снаружи — вагонка 12,5 мм

Перегородки: каркас — 100 мм, отделка вагонкой 12,5 мм

Потолок: утепление — 150 мм (Базальтовые плиты), отделка вагонкой 12,5 мм

Окна: Пластиковые Rehau, с двойным стеклопакетом (3 стекла)

Изоляция: изоляция всех конструкций с проклейкой швов

Электрика: распределительный щит 220 V с автоматикой на 5 групп, в каждом помещении три точки (розетка, выключатель и лампочка)

Водоснабжение и канализация: прокладка труб горячей и холодной воды сшитым полиэтиленом открытым способом и системы канализации скрытым способом в каждый санузел на три потребителя (раковина, унитаз, душевая), установка водонагревателя и фильтра грубой очистки

Отопление: организация выделенной линии под конвекторы отопления в каждом помещении

Можно заказать дополнительно к этой комплектации

Подарки и скидки

Проклейка швов пароизоляции

Акция! Окна в подарок до 27 декабря

Выбрать выгодную стоимость
Итого со скидкой
8 648 624
8 649 000
«Премиум»

Комплектация теплого дома для круглогодичного проживания с повышенной энергоэфективностью

Высота потолков: первый этаж — 2,7 м; второй этаж — 2,5 м

Железобетонные забивные сваи

Утепление – 200 мм (Базальтовые плиты)

Окна – пластиковые Rehau

Отделка стен – снаружи сайдинг Docke, внутри - гипсокартон Knauf

Кровля – металлочерепица Grand Line

Высота потолков: первый этаж — 2,7 м; второй этаж — 2,5 м

Фундамент: железобетонные забивные сваи 3,0 м с ростверком из наборной балки 200 мм (ниже глубины промерзания)

Стены: каркас — 200 мм; отделка внутри - гипсокартон Knauf 12,5 мм, снаружи — сайдингом Docke; утепление — 200 мм

Кровля: металлочерепица Grand Line

Первый этаж:

Полы: утепление — 200 мм, доска пола или ориентированно-стружечная плита (ОСП). Обработка огнебиозащитой нижнего конструктива

Стены: утепление — 200 мм (Базальтовые плиты), отделка внутри гипсокартон Knauf 12,5 мм, снаружи — сайдингом Docke

Перегородки: каркас — 100 мм, отделка гипсокартоном Knauf 12,5 мм

Потолок: утепление 100 мм (Базальтовые плиты), отделка гипсокартоном Knauf 12,5 мм

Второй этаж:

Полы: доска пола или ориентированно-стружечная плита (ОСП)

Стены: утепление — 200 мм (Базальтовые плиты); отделка внутри гипсокартон Knauf 12,5 мм, снаружи — сайдингом Docke

Перегородки: каркас — 100 мм, отделка гипсокартоном Knauf 12,5 мм

Потолок: утепление — 200 мм (Базальтовые плиты), отделка гопсокартоном 12,5 мм

Окна: Пластиковые Rehau, с двойным стеклопакетом (3 стекла)

Изоляция: изоляция всех конструкций с проклейкой швов

Вентиляция: Санузла с выводом через крышу

Электрика: распределительный щит 220 V с автоматикой на 5 групп, в каждом помещении три точки (розетка, выключатель и лампочка)

Водоснабжение и канализация: прокладка труб горячей и холодной воды сшитым полиэтиленом открытым способом и системы канализации скрытым способом в каждый санузел на три потребителя (раковина, унитаз, душевая), установка водонагревателя и фильтра грубой очистки

Отопление: организация выделенной линии под конвекторы отопления в каждом помещении

Можно заказать дополнительно к этой комплектации

Подарки и скидки

Комплект москитных сеток на окна

Проклейка швов пароизоляции

Акция! Окна в подарок до 27 декабря

Выбрать выгодную стоимость
Итого со скидкой
9 711 105
9 712 000
Хочу бесплатную консультацию

Позвоните мне

Отправляя форму Вы соглашаетесь с Политикой обработки данных.
Каталог

Проекты домов

В нашем каталоге представлены проработанные базовые проекты домов, на основе которых можно придумать дом своей мечты!

close